首页
Home
关于我们
Nav
产品中心
Nav
技术标准
Nav
新闻资讯
Nav
联系我们
Nav
截止阀
止回阀
球阀
闸阀
其他阀门
公司新闻
行业新闻
联系热线:
0577-67330208
您好,欢迎光临浙江铂达阀门有限公司!
铂达阀门
BODA VALVE
分享到:
上一个
下一个
美标固定球阀Q47F-150LBP
0577-67388818
产品详情
产品应用及性能规范:
设计与制造标准
API 6D
压力温度标准
ANSI B16.34
结构长度标准
ANSI B16.10
连接法兰标准
MSS SP-44-1996
试验与检验标准
GB13927、JB/T9092
主要材料标准
GB12230、GB12229
中法兰螺栓标准
API 598
性能规范
压力等级(lb)
150
300
400
600
试验压力(MPa)
强度试验
2.93
7.58
10.0
15.0
密封试验
2.07
5.52
7.31
11.03
气压试验
0.6
0.6
0.6
0.6
适用温度
-196℃至550℃(注明:不同工况温度,选用不同的材质)
适用介质
硝酸、醋酸、硫酸、碱液等腐蚀性气体液体介质
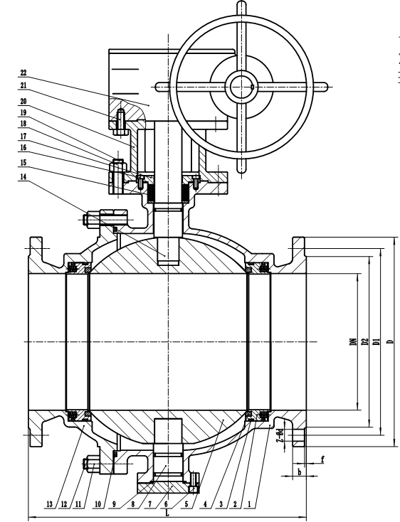
零件名称
1
阀体
CF8、CF8M、CF3M
2
阀座支撑圈
F304、F316、F316L
3
O型圈
NBR
4
密封圈
PTFE、PPL、PEEK
5
球体
F304、F316、F316L
6
螺钉
A193 B8
7
后盖
F304、F316、F316L
8
下阀杆
F304、F316、F316L
9
O型圈
NBR
10
O型圈
NBR
11
螺母
A194 8
12
螺栓
A193 B8
13
阀盖
CF8、CF8M、CF3M
14
阀杆
F304、F316、F316L
15
填料
PTFE
16
螺钉
A193 B8
17
填料压盖
CF8、CF8M、CF3M
18
螺母
A194 8
19
螺栓
A193 B8
20
支架
WCB
21
螺钉
A193 B8
22
涡轮
组合件
手动球阀
涡轮球阀
气动球阀
电动球阀
Q47F-150LBP
Q347F-150LBP
Q647F-150LBP
Q947F-150LBP
单位:mm
口径
结构长度
法兰外圆
中心距
密封面外圆
法兰厚度
凸台高度
孔径
螺栓
DN
L
D
D1
D2
b
f
d
Bolt
DN15
DN20
DN25
DN32
DN40
DN50
178
152
120.5
92
19/16
1.6
19
4-M16
DN65
190
178
139.5
105
22.5/17.5
1.6
19
4-M16
DN80
203
190.5
152.5
127
24/19.5
1.6
19
4-M16
DN100
229
229
190.5
157
24
1.6
19
8-M16
DN125
256
254
216
186
24
1.6
22
8-M20
DN150
394
279
241.5
216
25.5
1.6
22
8-M20
DN200
457
343
298.5
270
29
1.6
22
8-M20
DN250
533
406
362
324
30.5
1.6
26
12-M24
手动球阀
涡轮球阀
气动球阀
电动球阀
Q47F-300LBP
Q347F-300LBP
Q647F-300LBP
Q947F-300LBP
单位:mm
口径
结构长度
法兰外圆
中心距
密封面外圆
法兰厚度
凸台高度
孔径
螺栓
DN
L
D
D1
D2
b
f
d
Bolt
DN15
DN20
DN25
DN32
DN40
DN50
216
165
127
92
22.5
1.6
19
8-M16
DN65
241
190.5
149.4
105
25.5
1.6
22
8-M20
DN80
283
210
168.5
127
28.5
1.6
22
8-M20
DN100
305
254
200
157
32
1.6
22
8-M20
DN125
381
279
235
186
35
1.6
22
8-M20
DN150
403
318
270
216
37
1.6
22
12-M20
DN200
502
381
330
270
41.5
1.6
26
12-M24
地 址:
永嘉县五星工业区五星路1478号
手 机:17706871881 17706771881
(微信同号)
电 话:0577-67330208
QQ:717170158 / 744823582 邮 箱:717170158@qq.com
网站首页
关于我们
产品中心
新闻动态
联系我们
手机版网站
浙江铂达阀门有限公司
ZHEJIANG BODA VALVE CO., LTD.
销售微信号
销售微信号